Exclusive

Apartment FOR SALE IN Rennes

468 000 € A.F.I.
Ref. 501101
Living space : 92 m2
Bedrooms numbers : 3
Property tax : 1 607 €

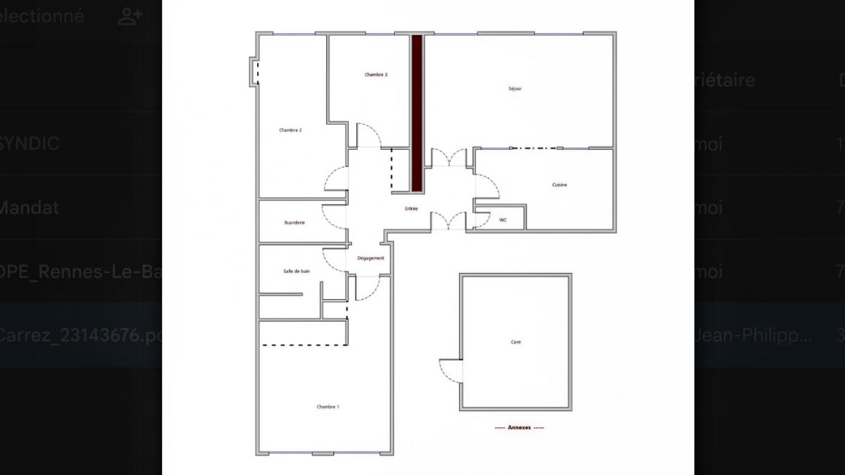
Vue dégagée 3e étage appartement ancien rénové 3 ch + cave

Exclusivité : coup de coeur pour cet appartement ancien situé en plein centre-ville historique de Rennes, proche de la Place du Parlement de Bretagne et du marché des Lices. Dans ce bel appartement de caractère rénové, on bénéficie d'une belle vue dégagée du haut du 3è étage. Au sein d'une copropriété sécurisée, sans ascenseur agréable appartement traversant d'une surface de 92,17m2 Carrez : entrée, séjour de 24m2 orienté sud, doubles baies, parquet style Versailles ancien et cheminée marbre ; la cuisine indépendante équipée-aménagée est dotée d'une cloison-fenêtre en bois à galandage s'ouvrant sur le séjour, dégagement avec placard-penderie, une grande chambre parentale sur cour avec placard-penderie, deux autres chambres, salle bains double vasque + douche, buanderie/chaufferie aménagée, toilettes indépendantes.
L'ensemble en très bon état offrant le cachet du XVIIIè siècle et le confort contemporain : belle hauteur sous plafond, parquets, boiseries, aménagements et décoration de qualité, volets bois intérieurs.
Au sous-sol : une grande cave voûtée sur gravier. Cour intérieure, stationnement possible pour les vélos.
Diagnostics DPE : D ; GES : B. Chauffage individuel électrique. Fibre.
Charges de copropriété : 543EUR/trimestre.
À 20mn à pied / 8mn en métro de la gare TGV.

Exclusivité - Votre acquisition immobilière concrétisée en 2026 avec Cabinet de Charry Bretagne Paris

Les informations sur les risques auxquels le bien est exposé sont disponibles sur le site www.georisques.gouv.fr

Prix de vente Frais d'Agence Inclus : 468 000 €

Fees including VAT borne by the buyer: 4%.
Net selling price: 450 000 euros

Further information

  • Heating : individuel électrique radiateur
  • Common parts : Elevator, Cave
  • Joint ownership : oui - Backup plan : non

Energy diagnostics

  • Economic residence
  • 238 kW/m²/an

    7 kg CO2/m²/an

  • High energy consumption residence
Search