Exclusivité

Appartement à vendre à Rennes

499 500 € F.A.I
Ref. 5011
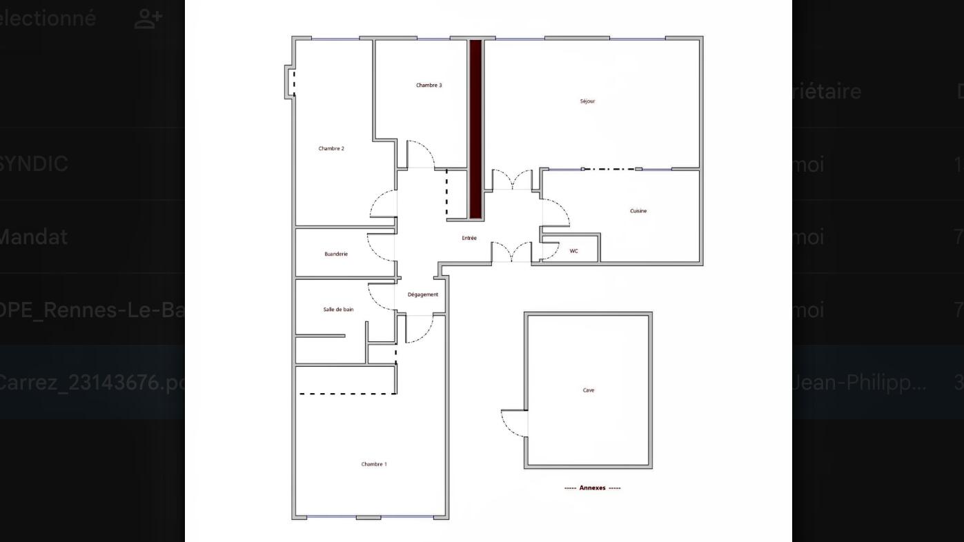
Surface habitable : 92 m2
Nbre chambres : 3
Taxe foncière : 1 607 €

Vue dégagée appartement ancien rénové 3 ch

Exclusivité située en plein coeur du centre-ville historique de Rennes, entre la Place du Parlement de Bretagne et le marché des Lices. Belle vue dégagée pour ce bel appartement de caractère rénové, au 3e étage d'un ensemble ancien sécurisé, sans ascenseur. Agréable appartement traversant de 92,17m2 Carrez : entrée, séjour de 24m2 orienté sud, doubles baies, parquet Versailles et cheminée ; la cuisine indépendante équipée-aménagée est dotée d'une verrière en bois à galandage s'ouvrant sur le séjour, dégagement avec placard-penderie, une grande chambre parentale sur cour avec placard-penderie, deux autres chambres, salle bains double vasque + douche, buanderie/chaufferie aménagée, toilettes indépendantes.
L'ensemble en très bon état offrant le cachet du XVIIIè siècle et le confort contemporain : belle hauteur sous plafond, parquets, boiseries, aménagements et décoration de qualité, volets bois intérieurs.
Au sous-sol : une grande cave voûtée sur gravier. Accès à la cour intérieure pour les vélos.
Diagnostics : en attente. Chauffage individuel électrique. Fibre.
À 20mn à pied / 8mn en métro de la gare TGV.


Exclusivité Cabinet de Charry Bretagne Paris
Les informations sur les risques auxquels ce bien est exposé sont disponibles sur le site Géorisques : www.georisques.gouv.fr

Les informations sur les risques auxquels le bien est exposé sont disponibles sur le site www.georisques.gouv.fr

499 500 € F.A.I

Honoraires TTC inclus à la charge de l'acquéreur : 4,15%.
Prix net vendeur : 480 000 euros

Informations complémentaires

  • Chauffage : individuel électrique radiateur
  • Parties communes : Ascenceur, Cave
  • Copropriété : oui - Plan de sauvegarde : non
Rechercher un bien