Exclusivité

Appartement à vendre à Rennes

499 500 € F.A.I
Ref. 5011-26
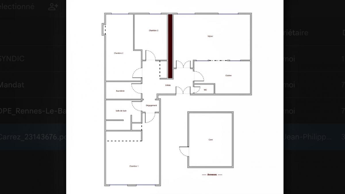
Surface habitable : 92 m2
Nbre chambres : 3
Taxe foncière : 1 607 €

Vue dégagée appartement ancien rénové 3 ch + cave

Coup de coeur pour cet appartement ancien en exclusivité situé en plein centre-ville historique de Rennes, proche de la Place du Parlement de Bretagne et du marché des Lices. Du haut du 3è étage, on bénfécie d'une belle vue dégagée dans ce bel appartement de caractère rénové, au sein d'une copropriété sécurisée, sans ascenseur. Agréable appartement traversant d'une surface de 92,17m2 Carrez : entrée, séjour de 24m2 orienté sud, doubles baies, parquet style Versailles ancien et cheminée marbre ; la cuisine indépendante équipée-aménagée est dotée d'une cloison-fenêtre en bois à galandage s'ouvrant sur le séjour, dégagement avec placard-penderie, une grande chambre parentale sur cour avec placard-penderie, deux autres chambres, salle bains double vasque + douche, buanderie/chaufferie aménagée, toilettes indépendantes.
L'ensemble en très bon état offrant le cachet du XVIIIè siècle et le confort contemporain : belle hauteur sous plafond, parquets, boiseries, aménagements et décoration de qualité, volets bois intérieurs.
Au sous-sol : une grande cave voûtée sur gravier. Cour intérieure, stationnement possible pour les vélos.
Diagnostics DPE : D ; GES : B. Chauffage individuel électrique. Fibre.
Charges de copropriété : 543EUR/trimestre.
À 20mn à pied / 8mn en métro de la gare TGV.

Exclusivité - Votre acquisition immobilière concrétisée en 2026 avec Cabinet de Charry Bretagne Paris

Les informations sur les risques auxquels le bien est exposé sont disponibles sur le site www.georisques.gouv.fr

499 500 € F.A.I

Honoraires TTC inclus à la charge de l'acquéreur : 4,15%.
Prix net vendeur : 480 000 euros

Informations complémentaires

  • Chauffage : individuel électrique radiateur
  • Parties communes : Ascenceur, Cave
  • Copropriété : oui - Plan de sauvegarde : non

Diagnostics énergétiques

  • Logement économe
  • 238 kW/m²/an

    7 kg CO2/m²/an

  • Logement énergivore
Rechercher un bien